空き家情報(No.37-18)
物件の詳細

| 物件の概要 | 物件の設備状況 | ||||||
|---|---|---|---|---|---|---|---|
| 所在地 | 羽幌町南5条1丁目8-4 | 空き家になった時期 | 令和5年 | 電気 | 引き込み済み | トイレ | 水洗・洋式 |
| 種類 | 売却物件・一般住宅 | 空き家の状況 | 多少の補修が必要 | ガス | プロパンガス | 車庫 | 有り |
| 築年月 | 昭和54年 | 補修の費用負担 | 入居者負担 | 風呂 | 灯油 | 物置 | 無し |
| 構造・規模 | 木造二階建て | 土地面積 | 190.70㎡ | 水道 | 上水道 | 庭 | 有り |
| 売却価格 | 30万円 | 建物面積 | 1階:78.24㎡、2階:50.22㎡ | 下水道 | 下水道 | ||
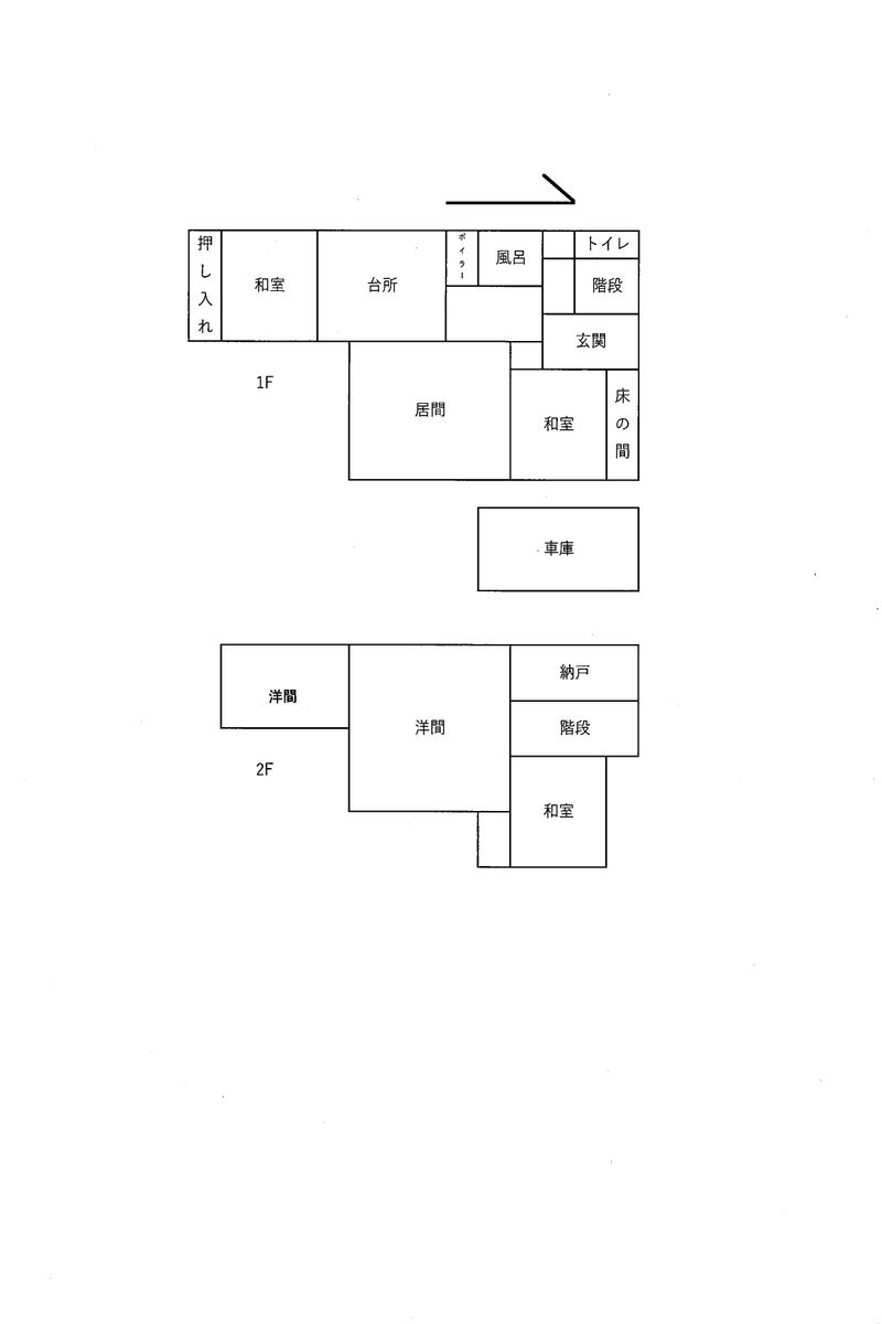
| 間取り | 1階:☑居間(8)畳 ☑台所 ☑風呂 ☑トイレ ☑和室(6)畳、(6)畳 2階:☑洋室(8)畳、(6)畳 ☑和室(6)畳 ☑その他(納戸) | ||||||
| 特記事項 | 残置物あり(神棚) | ||||||
| 契約交渉 | 直接型 | ||||||
| 主要施設へのアクセス | |||||||
|---|---|---|---|---|---|---|---|
| 役場 | 約1.0㎞ | 消防署 | 約0.5㎞ | 小学校 | 約0.5㎞ | スーパー | 約0.4㎞ |
| バス停 | 約0.4㎞ | 警察署 | 約0.5㎞ | 中学校 | 約1.0㎞ | ホームセンター | 約1.4㎞ |
| 病院 | 約1.8㎞ | 保育所 | 約0.7㎞ | 温泉 | 約0.8㎞ | コンビニ | 約0.8㎞ |
お問い合わせ先
町民課町民生活係 TEL:0164-68-7003 お問い合わせフォーム